Lublin, Szerokie

Dom na sprzedaż

Opis nieruchomości

  Na sprzedaż nowoczesny połówka domu w zabudowie bliźniaczej (lokal mieszkalny ) w spokojnej i dobrze skomunikowanej części Lublina. Lokal o powierzchni 137,24 m² (wraz z garażem) z przynależną działką ok. 320 m². Projekt indywidualny, dopasowany do działki, z funkcjonalnym i przemyślanym układem pomieszczeń.

Dom obejmuje przestronną strefę dzienną, trzy sypialnie, dwie łazienki, garderobę oraz poddasze do własnej aranżacji. Dodatkowym atutem jest balkon oraz prywatny ogród.

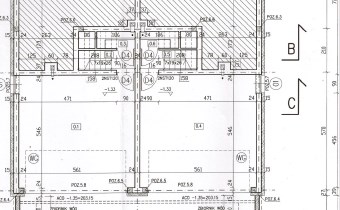
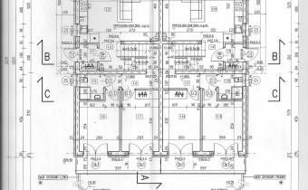
Rozkład pomieszczeń (jeden lokal)

Piwnica:

  • Garaż dwustanowiskowy – 30,19 m²

  • Schowek – 1,42 m²

  • Komunikacja – 2,25 m²

Parter:

  • Wiatrołap – 2,20 m²

  • Hall – 7,79 m²

  • Salon z aneksem kuchennym – 27,98 m²

Półpiętro:

  • Sypialnia – 11,17 m²

  • Sypialnia – 10,56 m²

  • Łazienka – 2,92 m²

  • Komunikacja – 3,92 m²

Piętro:

  • Hall – 8,26 m²

  • Łazienka – 6,47 m²

  • Garderoba – 3,90 m²

  • Sypialnia – 18,21 m²

Dom wykonany z betonu komórkowego 24 cm, ocieplony styropianem grafitowym 15 cm, z dachem czterospadowym pokrytym dachówką cementową i ocieplonym wełną 30 cm. Okna trzyszybowe (zewnątrz grafitowe, wewnątrz białe), brama garażowa HÖRMANN z napędem.

Ogrzewanie podłogowe z piecem gazowym kondensacyjnym i zasobnikiem ciepłej wody, dodatkowo grzejniki w garażu i piwnicy. Wykonane instalacje: elektryczna, wod-kan oraz alarmowa.

Teren zostanie zagospodarowany – taras, podjazd i opaska z kostki brukowej, ogrodzenie posesji.

Bardzo dobra lokalizacja – w pobliżu przedszkole, sklep Lewiatan, apteka oraz przystanek MPK.

Planowany termin zakończenia budowy: I kwartał 2026 r.
Kupujący zwolniony z podatku PCC.

 

Nota prawna

Opis oferty zawarty na stronie internetowej sporządzany jest na podstawie oględzin nieruchomości oraz informacji uzyskanych od właściciela, może podlegać aktualizacji i nie stanowi oferty określonej w art. 66 i następnych K.C.

Szczegóły oferty

Symbol oferty LNH-DS-1976
Powierzchnia 137,24 m²
Powierzchnia działki 320 m²
Liczba pokoi 4
Rodzaj domu bliźniak
Technologia budowlana beton komórkowy
Garaż dwustanowiskowy
Okna PCV
Instalacje dobre
Balkon jest
Liczba balkonów 1
Liczba tarasów 1
Ukształtowanie działki płaska
Kształt działki prostokąt
Pokrycie dachu dachówka
Stan budynku do wykończenia
Podpiwniczenie częściowo podpiwniczony
Rok budowy 2026
Gaz tak - miejski
Woda tak - miejska
Dojazd asfalt
Otoczenie działki zabudowane
Ogrzewanie C.O. GAZOWE
Tarasy taras duży
Prąd jest
Kanalizacja miejska

Pomieszczenia

Typ łazienki razem z wc
Liczba łazienek 2

Kalkulator kredytowy

PLN
%
Wysokość raty

Kalkulator kosztów

PLN
PLN
PLN
PLN
PLN
PLN
%
PLN
Podatek od czynności cywilno-prawnych
Taksa notarialna (opłata notarialna)
VAT od taksy notarialnej (opłaty notarialnej)
Wniosek do WKW
VAT od wniosku do WKW
Prowizja agencji nieruchomości
VAT od prowizji agencji nieruchomości
Wypisy aktu notarialnego - około
RAZEM (cena + opłaty)

Uwaga: mogą wystąpić dodatkowe opłaty za założenie księgi wieczystej oraz ustanowienie hipoteki.

Podobne oferty

dom na sprzedaż - Lublin, Dziesiąta

dom na sprzedaż

Lublin, Dziesiąta
2 pokoje 180,00 m2 7 777,78 zł/m2
dom na sprzedaż - Lublin, Sławin

dom na sprzedaż

Lublin, Sławin
5 pokoi 99,76 m2 9 522,85 zł/m2
dom na sprzedaż - Lublin, Czechów Północny

dom na sprzedaż

Lublin, Czechów Północny
5 pokoi 151,00 m2 8 609,27 zł/m2
oferta na wyłączność
dom na sprzedaż - Lublin, Szerokie

dom na sprzedaż

Lublin, Szerokie
5 pokoi 136,70 m2 9 875,64 zł/m2

Napisz do nas

Proszę wypełnić to pole
Proszę wypełnić to pole
Proszę wypełnić to pole
Proszę wypełnić to pole
Trwa wysyłanie...

Ta strona wykorzystuje pliki cookies w celach statystycznych oraz w celu dostosowania naszych serwisów do indywidualnych potrzeb klientów. Zmiany ustawień dotyczących plików cookie można dokonać w dowolnej chwili modyfikując ustawienia przeglądarki. Korzystanie z tej strony bez zmian ustawień dotyczących cookies oznacza, że będą one zapisane w pamięci urządzenia.

rozumiem