Głusk (gw), Dominów

Dom na sprzedaż

Opis nieruchomości

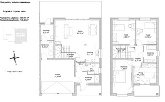
Nowoczesny  dom w zabudowie bliźniaczej z garażem dwustanowiskowym o pow. 176,31 m² - stan deweloperski. To nowa inwestycja w podlubelskim Dominowie.

Kameralna zabudowa, spokojna okolica, bliskość terenów zielonych i tras pieszo-rowerowych a jednocześnie szybki dojazd do Lublina ( około 15-20 minut). W pobliżu wszystko czego potrzebuje na co dzień Twoja rodzina  - przychodnia, apteka, garmażerka, sklepy, przedszkole, żłobek, szkoła w realizacji, poczta i paczkomaty, wydział komunikacji, Urząd Gminy, Dom Kultury , przystanek komunikacji miejskiej MPK

Duża działka o pow 550 m² daje możliwość aranżacji ogrodu według własnych preferencji, podział na strefę dzienną i prywatną część sypialnianą oraz przemyślany układ pomieszczeń  zapewniają komfort codziennego życia, pracy zdalnej i odpoczynku.

Dom posiada w strefie dziennej :
- duży salon z kuchnią, jadalnią oraz wyjściem do ogrodu
- wiatrołap
- przedpokój
- toaleta
- kotłownie
- schowek
- pomieszczenie gospodarcze
- garaż 2- stanowiskowy

Strefa nocna :
- 4 sypialnie ( 2 pokoje z wyjściem na balkon)

Teren ogrodzony
Media : prąd, woda, gaz, kanalizacja
W zakresie prac deweloperskich wykonane instalacje i tynki
Termin realizacji III kwartał 2026


Dla klientów, którzy chcą wprowadzić się bez stresu i oszczędzić czas jest możliwość wykończenia domu pod klucz jak również dokonania zmian w rozkładzie przestrzeni mieszkalnej i instalacji dodatkowych udogodnień.

Polecam tę nieruchomość dla osób szukających przestrzeni, komfortu, nowoczesnych udogodnień i spokoju bez konieczności rezygnacji z wygody i szybkiego dostępu do wszystkiego co oferuje miasto.

Zwolnienie z  podatku PCC !!!
Bez prowizji od kupującego !!!
Pomoc w uzyskaniu kredytu hipotecznego – wspieramy Cię na każdym etapie zakupu.
Sprawdź swoją zdolność kredytową – bezpłatnie i bez zobowiązań !

Skontaktuj się i poznaj szczegóły tej wyjątkowej inwestycji 
 

Nota prawna

Opis oferty zawarty na stronie internetowej sporządzany jest na podstawie oględzin nieruchomości oraz informacji uzyskanych od właściciela, może podlegać aktualizacji i nie stanowi oferty określonej w art. 66 i następnych K.C.

Szczegóły oferty

Symbol oferty LNH-DS-1968
Powierzchnia 176,31 m²
Powierzchnia użytkowa 137,99 m²
Powierzchnia działki 550 m²
Liczba pokoi 5
Rodzaj domu bliźniak
Standard
Liczba pięter w budynku 1
Garaż dwustanowiskowy
Okna PCV 3 szyby, ciepły montaż
Instalacje ELEKTRYCZNA, GAZOWA
Balkon jest
Liczba balkonów 1
Liczba tarasów 1
Zagosp. działki niezagospodarowana
Ukształtowanie działki płaska
Kształt działki kwadrat
Pokrycie dachu blachodachówka
Stan budynku do wykończenia
Ogrodzenie działki ogrodzona
Rok budowy 2026
Gaz jest
Woda jest
Dojazd ASFALTOWA
Otoczenie zabudowa jednorodzinna
Ogrzewanie C.O. GAZOWE
Tarasy taras
Prąd jest
Kanalizacja tak

Pomieszczenia

Powierzchnia pokoi 30,12+13,75+14,80+17,93+11,53 m2
Podłogi pokoi wylewka betonowa
Typ kuchni otwarta na salon
Rodzaj kuchni aneks kuchenny - połączony z salonem
Powierzchnia kuchni 7,21 m2
Podłoga kuchni wylewka betonowa
Typ łazienki razem z wc
Liczba łazienek 1
Powierzchnia łazienki 6,24 m2
Glazura łazienki bez glazury
Podłoga łazienki wylewka betonowa
Liczba WC 1
Powierzchnia WC 3,23 m2
Glazura WC bez glazury
Podłoga WC wylewka betonowa
Liczba przedpokoi 3
Powierzchnia przedpokoi 6,19+7,63+6,78 m2
Podłoga przedpokoi wylewka betonowa

Lokalizacja

Kalkulator kredytowy

PLN
%
Wysokość raty

Kalkulator kosztów

PLN
PLN
PLN
PLN
PLN
PLN
%
PLN
Podatek od czynności cywilno-prawnych
Taksa notarialna (opłata notarialna)
VAT od taksy notarialnej (opłaty notarialnej)
Wniosek do WKW
VAT od wniosku do WKW
Prowizja agencji nieruchomości
VAT od prowizji agencji nieruchomości
Wypisy aktu notarialnego - około
RAZEM (cena + opłaty)

Uwaga: mogą wystąpić dodatkowe opłaty za założenie księgi wieczystej oraz ustanowienie hipoteki.

Podobne oferty

dom na sprzedaż - Głusk (gw), Wilczopole

dom na sprzedaż

Głusk (gw), Wilczopole
4 pokoje 99,05 m2 12 014,13 zł/m2
dom na sprzedaż - Głusk (gw), Dominów

dom na sprzedaż

Głusk (gw), Dominów
4 pokoje 137,38 m2 7 133,50 zł/m2

Napisz do nas

Proszę wypełnić to pole
Proszę wypełnić to pole
Proszę wypełnić to pole
Proszę wypełnić to pole
Trwa wysyłanie...

Ta strona wykorzystuje pliki cookies w celach statystycznych oraz w celu dostosowania naszych serwisów do indywidualnych potrzeb klientów. Zmiany ustawień dotyczących plików cookie można dokonać w dowolnej chwili modyfikując ustawienia przeglądarki. Korzystanie z tej strony bez zmian ustawień dotyczących cookies oznacza, że będą one zapisane w pamięci urządzenia.

rozumiem